Lyon Way/Hindman's Way, Dagenham

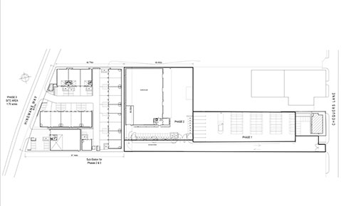
Enterprise House and the former Brain Haulage Site at 71 Chequers Lane in Dagenham Dock were redeveloped in three phases. The site was a brownfield site that had been used as a car breakers yard so a detailed site remediation programme was first necessary to bring the site back into commercial use.

 

Phase 1 comprised the refurbishment of offices at Enterprise House together with 0.89 acres adjoining developed on a build-to-suit (D&B) basis for use as a specialist high security vehicle parking compound on behalf of Securitas UK Limited.

 

Phase 2 comprised the development on 1.21 acres of a 23,750ft² (2,206m²) warehouse and office facility also on a build-to-suit (D&B) basis for occupation by relocation business C & M Apostolides Limited.

 

The estate road serving Phases 1 & 2 was named Lyon Way by the local authority, The London Borough of Barking & Dagenham, in honour of Ronald Lyon, Ravenbourne’s late chairman.

 

Phase 3 comprised the development of the OYO Business Units Dagenham scheme, accessed from Hindmans Way at the western end of the site rather than from Chequers Lane via Lyon Way, on 1.70 acres providing 36,935ft² (3,431m²) in 19 units including one detached self-contained unit of 8,809ft² (818m²) on a build-to-suit (D&B) basis for furniture company Hunters.